Продава 2-СТАЕН, град Пловдив, Тракия ID 35900373

107 300 €209 860.56 лв.Цената е с включено ДДС

Агенция

ИКАРУС 23град Пловдив Георги Данчоев 28
Посетена 147 пътиПубликувана в 12:17 на 12 Септември 2024

Обща информация

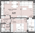
Квадратура74 m2
Етаж2-ри
ГАЗНЕ
ТEЦНЕ

Допълнителна информация

Без комисион от клиента! На тaзи обява се свързвате директно със собственик! Предлагаме напълно обзавеждане на апартаменти, къщи, офиси и магазини! Имаме продадени над 1000+ апартамента и над 400бр обзаведени апартаменти и къщи!Сградата се намира в непосредствена близост до Парк Лаута в район от ж. к. Тракия, съчетаващ спокойствие, свеж въздух и комуникативност. На мястото на небезизвестния аквапарк Акваленд са проектирани за изграждане 6 десететажни секции, разполагащи с просторни двустайни и тристайни апартаменти. Двата високоскоростни електрически асансьора във всеки вход и луксозни завършените общи части на сградите ще направят прибирането вкъщи още по-приятно. За удобство на новодомците са предвидени детски площадки, плувен басейн и търговски площи, а паркирането е обезпечено на 100% с подземни и наземни паркоместа. Има възможности за банково кредитиране. Офис продажби: кв. Христо Смирненски. Бул. Пещерско шосе 38 тел. 0888811422

Особености

В строеж • Асансьор • С паркинг • Интернет връзка • Видео наблюдение • Контрол на достъпа • Охрана • Възможност за дан. кредит • Тухла

Страница на обявата

Агенция

ИКАРУС 23град Пловдив Георги Данчоев 28

Споделяне

Преглeд на обявите по населени места: