Продава 3-СТАЕН, град Варна, Владислав Варненчик 1 ID 36103976
Брокер
Обща информация
Допълнителна информация
Тристаен апартамент в нова сграда пред Акт 15 Завършване на сградата началото на 2026 г.
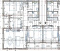
Тристаен панорамен апартамент в нова сграда с югозападно изложение. Състои се от дневен тракт 30 кв. м, две спални, две тераси, баня с тоалетна, отделно тоалетна и килер. Френски прозорци във всички стаи, осигуряващи максимално естествено осветление и прекрасна гледка. Сграда ' Дежа вю 2' е в квартал ' Владислав Варненчик' и в непосредствена близост до магазин ' Джъмбо' . Апартаментът се предлага завършен по БДС. Има възможност за покупка на подземно паркоместо.
Сградата е с бърз достъп до централната градска част посредством три основни булеварда. В близост е до автобусна спирка, училища, детски градини, големи търговски и хранителни магазини.
нова сграда с модерна визия
доказан строител
Панорамна гледка към Аспаруховия мост и Варненския залив.
Качествено строителство.
Обади се сега и цитирай този код 674785













