Обща информация
Допълнителна информация
!!!Нова жилищна сграда във Вилна зона Малинова Долина-Изток!!!
Предлагаме тристаен апартамент в новострояща се бутикова сграда със съвременен дизайн и хубава локация в Малинова долина, само на минути от Ринг Мол и новият ритейл парк, съчетаващ търговски и офис площи, както и хипермаркети.
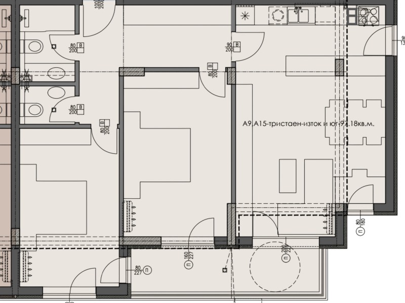
Апартамент А9 се намира на 2ри етаж с площ от 117, 34квм и застроена площ от 97, 18кв. м състои се от предверие дневна, 2 спални, баня, балкон и Wc . Апартаментите ще бъдат завършени на мазилка и подова замазка, входна блиндирана врата, монтирани ключове/контакти, луксозни общи части.
Разполагаме с мезонети двустайни и тристайни апартаменти и подземни паркоместа.
Формат Строй ООД e доказан строител с богат опит. Ние гарантираме качествено строителство .
тел. : 0893002882, e-mail: office@formatstroy. com, http://: formatstroy. imot.bg









