Брокер
Обща информация
Допълнителна информация
Код оферта:33483.
✅ Статут: апартамент. Без преход.
✅ Изложение: Юг, Юг, Запад.
👉 Сградата е на етап преди Акт 14.
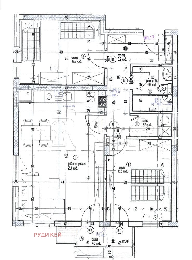
👉 Представяме Ви тристайно жилище състоящо се от коридор, всекидневна с кухненска част, две спални, баня с тоалетна, балкон и килер.
👉 Завършване съгласно БДС с висококачествена 5-камерна немска дограма с троен стъклопакет (KÖ MMERLING или REHAU). ВиК инсталация на тапа . ЕЛ инсталация: контакти, ключ и фасунги. Шпакловани стени. Екстериорна блиндирана врата. Сградата ще бъде снабдена с 8-местен асансьор KONE, предвижда се луксозно оформление на общите части, подови настилки от гранит, декоративна мазилка и топлоизолирана фасада.
👉 Възможност за закупуване на подземни и надземни паркоместа.
👉 Жилището се намира в близост до втори корпус на Технически университет - Варна. Бързият достъп до булеварди осигурява удобна връзка с централните части на града.
За контакт и оглед - брокер недвижими имоти: Дарин Щерев
'РУДИ КЕЙ': Компанията предлага всички необходими юридически и технически проверки на имота, както и възможностите за оптималната им реализация, организира всички етапи на сделка за покупко-продажба или наемни отношения до нейното финализиране с нотариално прехвърляне на имота. Съдейства за отпускане на банкови кредити при възможно най-добри условия за клиента. Компанията е регистрирана по ЗЗЛД като администратор на лични данни, което гарантира сигурността на клиентите. Ако проявявате интерес към тази оферта, необходима Ви е допълнителна информация, желаете да направите оглед на имота, оставаме на Ваше разположение за всякакви въпроси.
За контакт и оглед - брокер недвижими имоти: Дарин Щерев





