Обща информация
Допълнителна информация
✨ Описание на имота:
Предлагаме Ви светъл и функционален двустаен апартамент в новострояща се сграда на ул. Димитър Пешев в кв. Дружба 2. Жилището се намира на 4-ти от общо 6 етажа и има обща площ от 70 m² . Сградата е тухлена и ще бъде въведена в експлоатация през 2027 г.
ДОКАЗАН СТРОИТЕЛ.
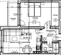
Разпределението включва:
Просторна дневна с кухненски бокс
Отделна спалня
Баня с тоалетна
Тераса
Апартаментът е подходящ за покупка чрез банков кредит. Сградата е проверена и одобрена от много банки, което улеснява финансирането.
⸻
🏡 Предимства на имота:
Отлична локация в Дружба 2, близо до градски транспорт и главни пътни артерии
Ново строителство с качествени материали
ТЕЦ
Подходящ за кредитиране
⸻
💼 Защо да изберете Black & White Realty:
Агенцията Black & White Realty предлага пълно съдействие при закупуване на имота, включително възможност за покупка с банков кредит.
Нашите кредитни консултанти ще Ви помогнат да изберете най-добрите условия, а партньорските ни екипи за ремонт, почистване и интериорен дизайн могат да съдействат новият Ви дом да бъде завършен според Вашия вкус.
⸻
📞 Свържете се с нас днес и направете следващата крачка към своя нов дом!
Black & White Realty Вашият партньор в луксозните и градски имоти.




