Брокер
Обща информация
Допълнителна информация
VIP ОФЕРТА ГОРНА БАНЯ!!!ВИСОК КЛАС МОДЕРНО СТРОИТЕЛСТВО!!! ЧИСТ ВЪЗДУХ И ГЛЕДКИ КЪМ ВИТОША!!! СОБСТВЕН ДВОР!!! ПРОСТОРНИ И СВЕТЛИ ПОМЕЩЕНИЯ!!! ПАНОРАМНА ТЕРАСА!!!
Луксозен комплекс от двуфамилни къщи в подножието на Витоша
Представяме Ви изискан жилищен комплекс от затворен тип, разположен в престижния квартал Горна Баня, познат със своя кристално чист въздух, тишина и непосредствена близост до природата на планина Витоша. Комплексът съчетава модерна архитектура, висок клас материали и изключителен комфорт, предназначен за хора, които ценят високото качество на живот.
Проектът включва девет двуфамилни къщи, всяка разделена на две напълно идентични самостоятелни части, всяка с РЗП 338 кв. м и собствен двор между 250 и 290 кв. м.
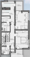
РАЗПРЕДЕЛЕНИЕ
Подземно ниво (-1)
Двоен гараж
Склад
Котелно помещение
Мокро помещение / перално
Дрешник / килер
WC
Първи етаж (партер)
Входно антре
Санитарно помещение
Просторна дневна с кухненски бокс 44 кв. м
Достъп до слънчева веранда тип английски двор със скрито LED осветление идеално кътче за релакс
Втори етаж
Мастър спалня 18 кв. м с отделен дрешник
Две спални по 15 кв. м
Дрешник / складово помещение
Две модерни бани с тоалетни
Две тераси
Трети етаж
Антре
Кабинет / спалня
Баня с тоалетна
Просторна панорамна тераса отлична за лятна кухня, джакузи, зимна градина или зона за отдих
ПРЕДИМСТВА И КАЧЕСТВО НА ИЗПЪЛНЕНИЕ
Подово отопление
Термо помпа
Собствена пречиствателна станция
Фасада с висококачествен мрамор
Висок клас строителни материали
Къщите се издават с Акт 16 по БДС
Възможност за професионално довършване до ключ на преференциални цени и материали по избор на клиента
ЛОКАЦИЯ И ПРЕДИМСТВА
Спокоен и предпочитан район в София
Природа, чист въздух и панорамни гледки
Бърз достъп до центъра на града
Отлична инфраструктура и удобства
Идеално място за семейства и хора, търсещи баланс, комфорт и уединение
дом за ценители
Уют, стил и модерно строителство, съчетани в престижна среда, насочена към клиенти с високи стандарти.
Експлоатация: Акт 15 до края на 2025 г. , Акт 16 Март/Април 2026 г.
Можем да ви предложим и БЕЗПЛАТНО ПРОФЕСИОНАЛНО СЪДЕЙСТВИЕ ЗА ЖИЛИЩЕН КРЕДИТ. ПРЕФЕРЕНЦИАЛНИ УСЛОВИЯ. НАЙ-ИЗГОДНИТЕ КЪМ МОМЕНТА.
📞 Свържете се с нас за оглед още днес!
Огледи се организират и през почивните дни.
📱 0898 745666 /0887806917
🔔 Работим с колеги. Посочената цена е за частни лица.













