Посетена 59 пътиПубликувана в 10:35 на 27 Януари 2026
Обща информация
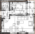
Квадратура71 m2
Етаж4-ти
Допълнителна информация
ПРЕД АКТ 15!!! КВ. ОСТРОМИЛА!!! ЗАТВОРЕН КОМПЛЕКС!!!
Представяме на Вашето внимание двустаен апартамент в района на кв. Остромила, със следното разпределение: просторна дневна с излаз на тераса, спалня с излаз на тераса, баня с тоалетна. Апартаментът се намира в нова сграда, с акт 14, удобства и предимства: Ниско застрояване, Осигурено 100% паркиране, Видеонаблюдение, Зона за отдих, Открито пространство за спорт, Детска площадка и др.
За Ваше улеснение прилагаме схема с разпределение на имота. Обадете се сега и цитирайте следния код: 138594
Особености
Тухла






