Обща информация
Допълнителна информация
Компания X представя на Вашето внимание двустаен апартамент в кв. Тракия!
МЕСТОПОЛОЖЕНИЕ: Квартал Тракия се намира в източната част на Пловдив и е един от най-модерните и просторни райони на града. Характеризира се с добре развита инфраструктура, широки булеварди, зелени площи и множество жилищни комплекси. Районът съчетава удобството на градската среда с усещане за простор и подреденост.
СТРОИТЕЛСТВО: Апартаментът се намира на 7-ми етаж от 9-ти, в сграда ново строителство.
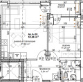
РАЗПРЕДЕЛЕНИЕ: Жилището разполага с площ от 62, 63 кв. м, разпределена във входно антре, дневна с кухненски бокс, спалня и баня с тоалетна и тераса.
СЪСТОЯНИЕ: С АКТ 16!
Заповядайте да Ви го покажем. Използвайки нашите услуги Вие ще превърнете закупуването на новия си дом в едно приятно изживяване, ще получите персонален консултант, съдействие при кандидатстване за кредит от всички банки в България, интериорни дизайнери и екип, който да се погрижи за нужните документи по Вашата сделка. На Ваше разположение сме всеки ден, от понеделник до неделя от 09:00 до 20:00ч. Възползвайте се от безплатна консултация в наш офис, където ще ви спестим време и ще ви запознаем с всички актуални имоти в България, отговарящи на Вашето търсене. Свържете се с нас и цитирайте кода към имота: 19-1081

