Обща информация
Допълнителна информация
🙏 С всяка сделка ние от Diamond Home помагаме! 💎
Даряваме процент от нашата комисионна на Фондация Вярвай - организация, която подпомага хора, борещи се с рак.
Вярваме, че заедно можем да направим нещо повече от просто бизнес - можем да дадем надежда. ❤ ️
🏠 Представяме Ви мансарден тристаен апартамент в нова модерна ниска сграда, разположена на стратегическа локация в район Южен.
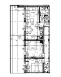
📐 Разпределението на апартамента включва коридор, дневна, кухненска част, 2 спални, баня с WC, WC, склад, покрив тераса.
✔ Сградата се отличава с модерна архитектура, отлично качество на строеж, нисък процент общи части и просторни и функционални апартаменти. Проекта се строи от утвърден на пазара строител с множество реализирани на 100% проекти и опит в строителството над 31г! В строителството ще се използват материали от най- висок клас съобразени с всички европейски стандарти.
❗ Възможност за покупка на гаражи и паркоместа.
💎 Нашата мисия е да ви предоставим доверие и обслужване от най-висок клас.
💎 Предлагаме над 1000 имота.
💎 Нашите услуги включват:
- Консултация със старши брокер
- Съдействие при кредитиране
- Договаряне на най-изгодни условия
- Пълна документация и юридическа подкрепа
- Управление на имоти
💎 За информация или оглед се свържете с нас!
ОФЕРТА НОМЕР: 237796




