Обща информация
Допълнителна информация
PAV Investment and building - утвърден и доказан на пазара инвеститор, предлага БЕЗ КОМИСИОН апартамент в своя сграда The new building, въведена в експлоатация в кр. на 2024 г. , разположена в кв. Гоце Делчев, на тиха улица - Метличина поляна поляна 15, с южно изложение на имота и панорама към Витоша.
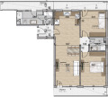
Предлаганият ап. е номер 806 Б със застроена площ 116, 25 кв. м. Състои се от антре, дневна с кухненски бокс, две спални, едната със санитарен възел, отделно баня с тоалетна, две тераси.
Отопление: ТЕЦ, климатици, бойлер. Дограма Komerling 6-камерна.
Възможност за покупка на гараж, надземен 60000 евро и подземен 50000 евро.
Общите части на сградата са с безкомпромисно изпълнение и дизайн от естествен мрамор, парапети от ковано желязо. Сградата е с три входа, с вентилируема фасада от юг, с високоскоростни асансьори, отвеждащи до сутерена.
Квартал Гоце Делчев е тих, добре озеленен, предпочитан. Сградата е близо до Южния парк, ул. Костенски водопад, бул. България, спирки на авт. 73, 74, 76, тролейбуси 2, 7 и 8. Цените са с ДДС.
За повече информация относно строителя и сградата вижте на www.pav-bg. com.

















