Продава 3-СТАЕН, град Пловдив, Гагарин ID 37330918

120 187 €235 065.34 лв.Цената е с включено ДДС

Агенция

СГ ЕСТЕЙТС БЪЛГАРИЯ, град Пловдив
СГ ЕСТЕЙТС БЪЛГАРИЯград Пловдив Бул. Източен 80
Посетена 7 пътиПубликувана в 11:38 на 10 Октомври 2025

Обща информация

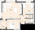
Квадратура104 m2
Етаж10-ти

Допълнителна информация

📣 ВЪЗМОЖНОСТ ЗА НАМАЛЕНИЕ ДО 8% ОТ ЦЕНАТА📣
SG Estates Bulgaria предлага тристаен апартамент в района на Гагарин.

📐 Функционално и добре организирано вътрешно пространство, което включва:
- входно антре
- просторна дневна с кухненски бокс и трапезария
- 2 спални
- баня с тоалетна и тоалетна
- тераса

✅ С възможност за закупуване на паркомясто или гараж.
📍 Локация: В комуникативен район, близо до търговски центрове, училища, детски градини, паркове и удобен градски транспорт.

При покупка на имот с SG Estates Bulgaria, получавате не просто посредник, а квалифициран партньор. Като лицензиран кредитен консултант към CreditCenter, ние ще Ви съдействаме да намерите най-доброто финансиране - лесно, сигурно и изцяло в синхрон с Вашите нужди. Нашият екип е обучен, сертифициран и ежедневно усъвършенства уменията си, за да Ви предложи най-високо ниво на професионализъм. Членството ни в НСНИ / Национално сдружение Недвижими Имоти / е допълнителна гаранция за качество, етика и доверие в процеса на всяка сделка.

📞 Свържете се с нас за повече информация или оглед.
Оферта 6

Особености

Асансьор • С гараж • С паркинг • Тухла

Страница на обявата

Агенция

СГ ЕСТЕЙТС БЪЛГАРИЯ, град Пловдив
СГ ЕСТЕЙТС БЪЛГАРИЯград Пловдив Бул. Източен 80

Споделяне

Преглeд на обявите по населени места: