Брокер
Обща информация
Допълнителна информация
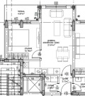
Представяме на Вашето внимание двустаен апартамент разположен в сграда пред АКТ 15 в квартал 'Малинова долина' със следното разпределение: входно антре, дневен тракт с кухненски бокс, спалня, баня с тоалетна и една тераса .
ПРЕДИМСТВА:
* Остатъчно плащане на АКТ 16
* Източно изложение
* Гараж към имота на цена от 26 000 евро
* Отлична локация- в близост до бул'Симеоновско шосе' , детска градина, спирки на градския транспорт и хипермаркети
Поради отличното местоположение имотът е подходящ както за живеене така и за инвестиционни цели. Агенция 'Имотен Център България' предлага възможност за съдействие при желание от клиента за кредитиране, ремонтни дейности , дизайнерски проекти и обзавеждане на преференциални условия чрез препоръка на фирмата. За повече информация и насрочване на огледи , моля обадете се на посочения телефон. Отговорен брокер за имота-Велислав Шопов.






