Обща информация
Допълнителна информация
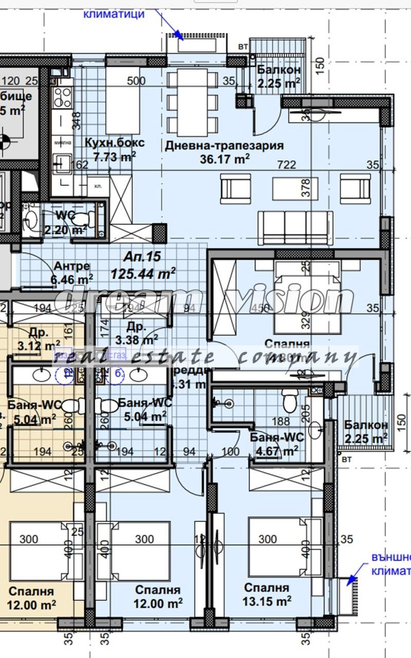
ДРИЙМ ВИЖЪН НЕДВИЖИМИ ИМОТИ Продава четиристаен апартамент в кв. Бояна. Намира се в малка, бутикова сграда само с 16 апартамента и общ подземен паркинг, с богато озеленени общи части и самостоятелна паркова среда с кътове за отдих и детски кът. Сградата е разположена на много спокойно място - с лесен и бърз достъп до основни пътни артерии. Състои се от входно антре, дневна с кухненски бокс и трапезария, три спални (едната разполага със собствена баня с тоаетна), втроа баня с тоалетна, отделна тоалетна, дрешник, две тераси. Предава се на шпакловка и замазка, блиндирани врати, шест камерна дограма с трислоен стъклопакет и К стъкло, шумо - и топлоизолация. Общи части - ще бъдат луксозно изпълнени и с гранит, дървена ламперия и висококачествен хидравличен асансьор. Качествено строителство от ДОКАЗАЛ СЕ В ГОДИНИТЕ СТРОИТЕЛ. Възможност за закупуване на гаражи. В сградата предлагаме и други апартаменти. Всички наши обяви ги работим с колеги. Оферта в агенцията 9486. Още наши оферти може да намерите на www.dreamvision.bg Телефони за връзка: 02/421 96 35 ; 0886 13 22 91 Димитър Георгиев



