Обща информация
Допълнителна информация
Компания Х представя на Вашето внимание тристаен апартамент в Центъра.
МЕСТОПОЛОЖЕНИЕ: Квартал Център е един от най-популярните и централно разположени квартали в град Пловдив.
СТРОИТЕЛСТВО: Разположен на 2-ри етаж в тухлена сграда, ново строителство.
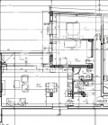
РАЗПРЕДЕЛЕНИЕ: Жилището разполага с площ от 133 кв. м. , разпределена по следния начин: Дневна с кухненски бокс, две спални, баня и тоалетна и тераса.
СЪСТОЯНИЕ: В строеж.
Заповядайте да Ви го покажем. Използвайки нашите услуги Вие ще превърнете закупуването на новия си дом в едно приятно изживяване, ще получите персонален консултант, съдействие при кандидатстване за кредит от всички банки в България, интериорни дизайнери и екип, който да се погрижи за нужните документи по Вашата сделка. На Ваше разположение сме всеки ден, от понеделник до неделя от 09:00 до 20:00ч. Възползвайте се от безплатна консултация в наш офис, където ще ви спестим време и ще ви запознаем с всички актуални имоти в България, отговарящи на Вашето търсене. Свържете се с нас на 088777990 или на 0884060990 и цитирайте кода към имота: 894-26127

