Посетена 63 пътиПубликувана в 16:20 на 05 Февруари 2026
Обща информация
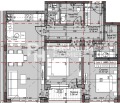
Квадратура99 m2
Етаж2-ри
ГАЗДА
Допълнителна информация
АКТ16 СЕПТЕМВРИ! СРЕЩУ БИСНЕС ПАРК! В БЛИЗОСТ ДО ОКОЛОВРЪСТЕН ПЪТ! ОДОБРЕН ОТ ВСИЧКИ БАНКИ ИНВЕСТИТОР!! ОПИТ НАД 30 ГОДИНИ!! Представяме Ви тристаен апартамент в жилищна сграда, с високо качество на строителството и материалите, перфектна локация и сигурност. Близостта до Околовръстен път, метространция, множество магазини , изграждането на спортна зала в близост и проект за ново училище в района, правят жилищния комплекс перфектно място за млади семейства. За да научите повече за проекта, наличните апартаменти, паркоместа и гаражи, схемите на плащане и др. както и за да резервирате своето ново жилище ни се обадете на посочения по-долу телефон за връзка. Код на имота: 92- 1Б
Особености
Тухла














