Обща информация
Допълнителна информация
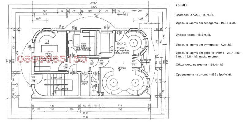
Давам под наем офис в центъра на гр. Шумен,
Намиращ се на партерен етаж, състоящ се от три офис помещения обзаведени луксозно, тоалетна и сервизно помещение с обща площ на етажа 98 м. кв. , както и 19, 93 м. кв. от идеалните масти на сградата. Етажа е климатизиран, като може да бъде включен към локалното отопление на сградата на газ, като има и резервен вариант - котел на нафта.
Сутеренна част състояща се от котелно и склад за гориво /нафта/ и санитарен възел с обща площ на етажа 18, 5 м. кв. , както и 7, 2 м. кв. от идеалните части на сутерена.
Локация в непосредствена близост да държавни и общински институции: община, съд, НАП, НОИ, Агенция по вписванията, нотариуси, адвокатски кантори и други, както и в близост до училища и детски градини.
За контакти тел. : 0898685150.






