Брокер
Обща информация
Допълнителна информация
Компания за недвижими имоти ' Купи в България' има изключителното удоволствие да представи на клиентите си нов проект на модерна бутикова жилища сграда, в една от най-желаните локации на град Варна, а именно ж. к. Бриз.
Мечтаете ли за удобство, красива морска гледка, тишина, спокойствие и в същото време да живеете в града? Възможно е!
Разположена във високата част на един от най-престижните квартали за живеене и инвестиции във Варна кв. Бриз, сградата е комбинация от модерна архитектура и луксозно изпълнение, в непосредствен допир с природата. Именно това съчетание гарантира на Вас и Вашите деца, спокойствие и удобство, от което всички имаме нужда в забързаното ежедневие! Замислена и проектирана, като затворен мини комплекс , с голямо дворно място и прекрасно озеленени части, в сградата са предвидени контролиран достъп и достатъчно паркоместа.
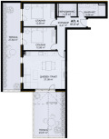
В сградата са предвидени 21 апартамента с площ от 72 до 156 м?, като за всеки от тях има предвидено мазе.
Сградата е на пешеходно разстояние от стадион Юрий Гагарин и на 500 метра от автобусна спирка на бул. Васил Левски . В близост има голям хипермаркет, плувен басейн, фитнес зала, медицински център, детски градини и училища.
Правилните форми, функционалните разпределения и внимание към всеки детайл са в основата на проекта.
- Блиндирани входни врати
- 8-местен електрически асансьор
- Входната и гаражната врати на H?rmann
- Дограмата е в сив цвят с профили GEALAN - шест-камерна, енерджи стъкла
- До всяка стая на апартаментите ще бъдат прекарани трасета за климатици
- Ограда от ковано желязо, по цялата периферия на имота
- Тераси със стъклени парапети
- Периметрово видеонаблюдене
- Видеонаблюдение на подземния паркинг
- Апартаментите имат вградена система за охрана
На разположение на бъдещите собственици, в двора ще бъдат изградени кът за отдих с барбекю зона и детска площадка.
Гъвкавите схеми на разплащане и не подлежащата на промяна цена след подписване на предварителен договор, са допълнителни предимства, за да изберете бъдещия си дом именно в тази бутикова сграда!
ID 30787










