Посетена 50 пътиПубликувана в 10:51 на 17 Септември 2025
Обща информация
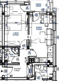
Квадратура60 m2
Етаж3-ти
Допълнителна информация
Оферта 4075. Предлагаме Ви двустаен, нов монолит, разположен в малка сграда в квартал Остромила. Жилището се състои от хол с кухненски кът, самостоятелна спалня, баня с тоалетна ведно, антре, тераса. Слънчев и светъл имот с изложение запад-север. Акт 16-в началото на 2026г. Чудесен избор, както за нов дом, така и за покупка с цел инвестиция и последващо отдаване под наем. Оказваме пълно съдействие за банково кредитиране при най-добри условия и цялостна юридическа проверка на имотите, които предлагаме. За контакти и допълнителна информация-0897812066.
Особености
Асансьор • Контрол на достъпа • Саниран • Тухла












