Обща информация
Допълнителна информация
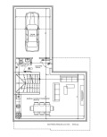
Титан Пропъртис продава самостоятелна къща с двор в тихата и добре развита зона на с. Войводиново, само на минути от гр. Пловдив. Имотът е с обща площ от 205, 80 кв. м. , разпределен на два функционални етажа:
Първи етаж предверие, просторна дневна с кухненски бокс, баня с тоалетна и уютна веранда; Втори етаж коридор, три спални, две бани с тоалетни и тераса;
Къщата разполага и с гараж, както и две допълнителни паркоместа. Дворът е около 300 кв. м. подходящ за отдих, детска площадка или градина. Имотът е подходящ както за постоянно живеене, така и за инвестиция.
Посочената цена от 175 000 евро е за етап Акт 14, като има възможност за довършване на имота до Акт 16 от инвеститора срещу допълнително договаряне.
За оглед на това и други атрактивни предложения, не се колебайте да ни потърсите на посочения телефон или да ни изпратите данните си чрез формата за запитване на сайта.
Реф. номер: 2092314
















