Брокер
Обща информация
Допълнителна информация
ОТЛИЧНА ИНВЕСТИЦИЯ! 'Елиз дом' предлага на вашето внимание апартаменти в новострояща се шестетажна сграда с апартхотел в кв. Виница.
МОРСКА ПАНОРАМА!
РЕНОМИРАН СТРОИТЕЛ!
Старт на строителството - декември 2025 г. Срок за завършване: 36 месеца.
Разсрочено плащане - предлагат се три схеми на плащане.
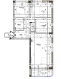
Четиристаен апартамент (Ап. 12) на 4-ти етаж, обща площ 113. 62 кв. м. (чиста площ 95. 21 кв. м. , изба 5. 50кв. м), цена 159 000 евро. /*Посочената цена е при схема на плащане 80% при подписване на предварителен договор, 10 % на Акт 14 и 10% на Акт 15/
За продажба в сградата се предлагат едностайни, двустайни, тристайни и четиристайни апартаменти включително и градински апартаменти с двор и веранда.
Възможност за закупуване на подземни и надземни паркоместа и гаражи.
Още предложения от 'ЕЛИЗ ДОМ' можете да разгледате на www.eliz-dom. com












