Продава 2-СТАЕН, град Варна, Колхозен пазар ID 39837597
Брокер
Обща информация
Допълнителна информация
#ФУНКЦИОНАЛНО РАЗПРЕДЕЛЕНИЕ!
#ОТДЕЛНА СПАЛНЯ!
#БЕЗ ПРЕХОД!
#С КИЛЕР!
#С ТЕРАСА!
#СВЕТЛО И ПРАКТИЧНО!
#ПЕРФЕКТНО ЗА ИНВЕСТИЦИЯ!
Lions Group Предлагаме Ви Двустаен апартамент в новострояща се жилищна сграда, разположена в района на Колхозен пазар, със статут на ателие, но с разпределение като двустаен апартамент.
Имотът е изключително функционален, без преходни помещения, което го прави удобен както за живеене, така и за отдаване под наем.
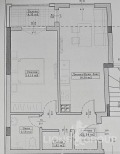
Разпределение:
входно антре
дневна с кухненска част
самостоятелна спалня
баня с тоалетна
килер / мокро помещение
тераса
Жилището е с правилни форми на стаите, което позволява лесно обзавеждане и максимално усвояване на пространството. Осигурена е добра осветеност и уют през целия ден.
Имотът е част от модерна сграда с качествено строителство и контролиран достъп.
Локацията е отлична в близост до пазар, магазини, спирки на градски транспорт, заведения и всички удобства на градската среда.
#ВИСОКА ДОХОДНОСТ!
#ИДЕАЛЕН ЗА НАЕМ!
#ОБАДЕТЕ СЕ СЕГА!
+359 890 158 711
Консултант :Станислава Станчева
Реф. номер : 17182


