Продава 3-СТАЕН, град София, Малинова долина ID 40042721
Брокер
Обща информация
Допълнителна информация
ARCO REAL ESTATE предлага за продажба Тристаен в сграда в Ж. К. Малинова Долина до Климент Охридски.
Просторен тристаен апартамент в Малинова долина, в близост до Националната спортна академия (НСА)
Имотът се намира в един от най-предпочитаните и бързо развиващи се райони на София. Разположен в тиха и зелена част на квартала, апартаментът съчетава удобството на градския живот с усещане за спокойствие и комфорт. Отличната локация осигурява лесен достъп до градски транспорт, основни пътни артерии, магазини, спортни и развлекателни съоръжения.
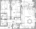
Предлагаме тристаен апартамент, намиращ се на 1ви етаж от 6 с площ от 119. 75м2. Апартаментът е с чиста застроена площ 99. 99м2 и има следното разпределение:
Дневна с кухненски бокс, 30. 30м2
Спалня 13. 96м2
Спалня 15. 82
Баня с тоалетна 3. 55
Баня с тоалетна 3. 94
Складово помещение 2. 82
входно антре 6. 64м2
Етап на строителство- преди акт15
Акт 16 се очаква до края на 2026 като се предлага гъвкава схема на разплащане
ARCO REAL ESTATE е лицензиран кредитен посредник и оценител, предлагаме съдействие за ипотчено кредитиране
Водещ брокер на обявата: Вайс Сайфи
0878999555



