Продава 2-СТАЕН, град София, Манастирски ливади ID 40344139
Обща информация
Допълнителна информация
ДИРЕКТНО ОТ ИНВЕСТИТОРА, БЕЗ КОМИСИОННА ОТ КУПУВАЧА!
Очаквано въвеждане в експлоатация октомври 2027 г.
Предлагаме 2-стаен апартамент в жилищен комплекс Липите , кв. Манастирски ливади изток, в близост до бул. Тодор Каблешков и Мол България, на тихо и комуникативно място.
ПРОЕКТЪТ:
Фаза 1, етап 1 (2023 г. ) въведен в експлоатация, всички обекти продадени,
етап 2 (2024 г. ) въведен в експлоатация, всички обекти продадени
Етап 3 (в строеж) включва 66 апартамента, 6 магазина и 74 паркоместа.
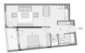
АПАРТАМЕНТ:
1-ви жилищен етаж над магазини, изложение: запад
Разпределение: входно антре (6. 95 м² ), дневна с кухненски бокс и трапезария (32. 46 м² ), спалня (16. 12 м² ), баня с тоалетна (4. 42 м² ), тераса (6. 03 м² ), килер (1. 87м² )
ЗП: 77. 36 м² , обща площ: 91. 83 м²
Опция за закупуване на подземно паркомясто с топла връзка.
СРОКОВЕ:
Акт 14 септември 2026 г.
Акт 15 август 2027 г.
Акт 16 октомври 2027 г.
СХЕМА НА ПЛАЩАНЕ:
10% при Предварителен договор
10% при Получаване на Акт 15
80% при въвеждане в експлоатация
Инвеститор: Херчеса България
Главен изпълнител: Маркан
Богат избор от 2-, 3- и 4-стайни апартаменти - www.lipite. hercesa.bg







