Брокер
Обща информация
Допълнителна информация
Варна, известна със своите красиви плажове и динамичен живот, предлага уникална възможност за покупка на нов двустаен апартамент в квартал Възраждане. Този имот, завършен през 2025 година, е идеален за млади семейства или инвеститори, търсещи комфорт и удобство в сърцето на града.
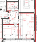
Апартаментът разполага с площ от 64 квадратни метра и е разположен на първи етаж в осеметажна сграда с тухлено строителство. Състои се от една спалня, просторен хол, баня с тоалетна и допълнителна тоалетна. Състоянието на имота е БДС, което предоставя възможност на новите собственици да го завършат според собствените си предпочитания. Изложението на апартамента е южно, което осигурява изобилие от естествена светлина през целия ден.
Предимствата на този имот са многобройни. В сградата има асансьор, а контролираният достъп и видеонаблюдението осигуряват допълнителна сигурност. В близост до апартамента се намират магазини, училища, детски градини, болници и аптеки, което го прави изключително удобен за семейства с деца. Освен това, наличието на паркомясто и басейн допълват комфорта на новите обитатели.
Техническите спецификации на имота включват отопление с климатик и енергийна ефективност клас А+, което гарантира ниски разходи за енергия. Строителството е в етап Акт 15, а завършването на сградата е планирано за 2027 година, което предоставя възможност за инвестиция в бъдещето.
В заключение, този двустаен апартамент в Варна е идеален избор за всеки, който търси съвременен и удобен дом в един от най-привлекателните райони на града. Съчетанието от отлична локация, модерни удобства и висока енергийна ефективност го прави изключително привлекателен на пазара на недвижими имоти.





