Посетена 1 пътиПубликувана в 13:19 на 06 Април 2026
Обща информация
Квадратура6 m2
ГАЗНЕ
ТEЦНЕ
Допълнителна информация
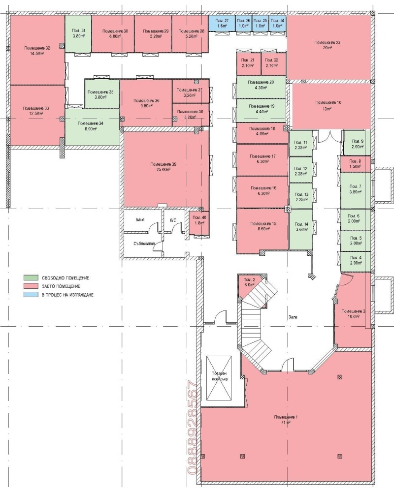
Отдавам под наем подземни складове на ул. Казбек 51, на ниво -1, с различни квадратури. Има изграден товарен асансьор и се предоставят транспортни колички. Помещенията са вентилирани, има СОТ и видеонаблюдение. Достъпа е от 9:00ч. до 18:00ч.
Има свободни помещения от 1кв. м до 15кв. м, като цените варират от 39лв. до 370лв.
Особености
Асансьор • СОТ • Интернет връзка • Видео наблюдение • Контрол на достъпа










