Брокер
Обща информация
Допълнителна информация
БИЛДИНГ БОКС представя за продажба тристаен апартамент в гр. Пловдив пред АКТ16.
Предимства на имота:
- ЛОКАЦИЯ: кв. ' Остромила' предлага бърз достъп до ' Модър-Царевец' и всички главни пътни артерии, едновременно с бърз изход към Околовръстния път на гр. Пловдив.
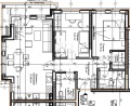
- РАЗПРЕДЕЛЕНИЕ: Дневна с трапезария и кухненски бокс, две спални, две бани с тоалетни, преддверие, склад и тераса.
- ЕТАЖ: 2-ри етаж от общо 5.
- ОТОПЛЕНИЕ: Електричество.
- ИЗЛОЖЕНИЕ: ЮГ/ЗАПАД.
- ПАРКИРАНЕ: Към имота може да се закупи паркомясто на цена от 15 000 евро.
- ЕТАП НА СТРОИТЕЛСТВО: Сградата е пред АКТ16.
- СГРАДА: Модерен жилищен комплекс, състоящ се от четири самостоятелни сгради с по 4 жилищни етажа, отличаващи се с елегантна архитектура. Сградите са умело разположени, създавайки затворена паркова среда с много зеленина и пешеходни алеи.
БИЛДИНГ БОКС предоставя безплатна консултация и съдействие при финансиране на избрания от Вас имот.
Оферта 30293










