Обща информация
Допълнителна информация
БЕЗ КОМИСИОН ОТ КУПУВАЧА! АКТ 14! АКТУАЛНА ОБЯВА и ЦЕНА на Строителя от 24. 10. 25г. ! ОСТАВАТ ОЩЕ 3 ТРИСТАЙНИ АПАРТАМЕНТА И 1 ЧЕТИРИСТАЕН!
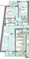
Тристаен апартамент със застроена площ от 106. 04 м2 (124. 19 м2 с общите части). Разпределението е както следва: антре, дневна с кухнески бокс, 2 спални, баня, WC, склад, 2 балкона. Изложение Ю/З/С
Новострояща се жилищна сграда( разпродадена на 95 %), която се намира на едно от най-комуникативните места в София, район Подуяне. Централно, но същевременно тихо и спокойно местоположение на сградата.
Намира се на пешеходно разстояние от: метростанция Хаджи Димитър ( 3 мин. ), метростанция Театрална (13 мин), училище 143 ОУ (5 мин); детски градини Дъга и Слънце (5 мин. ), парк-градина Площад родина (1 мин. ), парк Заимов (13 мин. ), BILLA Черковна и BILLA В. Вазов (3 мин. ).
Районът е с изключително добре изградена инфраструктура.
Общите части на сградата ще бъдат луксозно изпълнени и оборудвани с гранит, дървена ламперия и луксозен хидравличен асансьор.
Апартаментите са проектирани по европейски стандарти, с добър жилищен обем и усещането за много простор и слънчева светлина.
Предвидена е шумоизолация, прозорците ще бъдат оборудвани с шесткамерна дограма с трислоен стъклопакет и К стъкло, шумо и топлоизолация.
Още при проектиране на сградата са заложени най-модерните технологии и съвременни материали, които ще бъдат използвани в процеса на строителството, за да се създаде висок стандарт, уют и спокойствие на живущите в комплекса.
Жилищната сграда включва 15 апартамента във вход А и 34 апартамента във вход Б с магазин и общ подземен паркинг.
Богат избор от апартаменти двустайни, тристайни и честиристайни.
Сграда от висок клас строителство:
* Фасадно лед осветление и декоративно градинско осветление, което да очертае парцела и зелените площи
* Система за контрол на достъпа към сградата и подземния гараж
* Система за видеонаблюдение, което обхваща периметъра около сградата
* Видеодомофонна система с контрол на достъп с карта или чипове
* СОТ система за всеки апартамент
* Електронни водомери при които цялата информация ще се сканира от входа на сградата
* Изводи за електрически щори за всеки прозорец в жилищната част
* Изводи за климатици във всяка стая
* Изводи за радиатори ТЕЦ
* Подово отопление в баните и изводи за поставяне на лири
* Блиндирани врати.
Строителство:
Отопление: изводи за климатици във всяка стая; радиатори ТЕЦ; подово отопление в баните.
Изолация: Сградите са топлоизолирани с 10 см EPS изолация. Покривите са топлоизолирани с XPS изолация 10 см и двойно хидроизолирани. Всички тераси също са хидроизолирани.
Стени: Oграждащите и преградните стени са тухлени, при спазване на БДС с гарантирано качество на материалите. Заложени са висококачествени тухли Wienerberger. Фасадните стени са комбинация от полимерна мазилка и естествен камък.
Дограма: Дограмата е с трислоен стъклопакет с К стъкло профил.
Входните врати са блиндирани.
Инсталации: Към всяко жилище са осигурени звънчева, телефонна и видеодомофонна инсталации, мрежа за включване на кабелна телевизия и интернет.
Издаване:
Стени шпакловка
Подове замазка
Гъвкава схема на плащане:
1. 30% от продажната цена - в деня на сключване на предварителен договор;
2. 30% от продажната цена след съставянето на акт за приемане на конструкцията
(обр. 14);
3. 20% от продажната цена - след изградени ВиК и Ел. инсталации
4. 10% от продажната цена след съставянето на констативен акт за установяване годността за приемане на строежа (обр. 15);
5. 10% от продажната цена след издаването на удостоверение за въвеждане в експлоатация, респ. разрешение за ползване.
Срокът за завършване на сградата е септември 2026г.
В сградата се предлагат и други и тристайни апартаменти.
Възможност за закупуване на паркоместа и гаражи на цена от 25 000 Евро
При интерес моля пишете на office@imo-home. com или позвънете на 098 8951012.













