Брокер
Офис 'пл. Света Неделя'Личен телефон: 0882 121 488
Посетена 94 пътиПубликувана в 03:15 на 12 Декември 2025
Обща информация
Квадратура113 m2
Етаж3-ти
ГАЗНЕ
ТEЦДА
Допълнителна информация
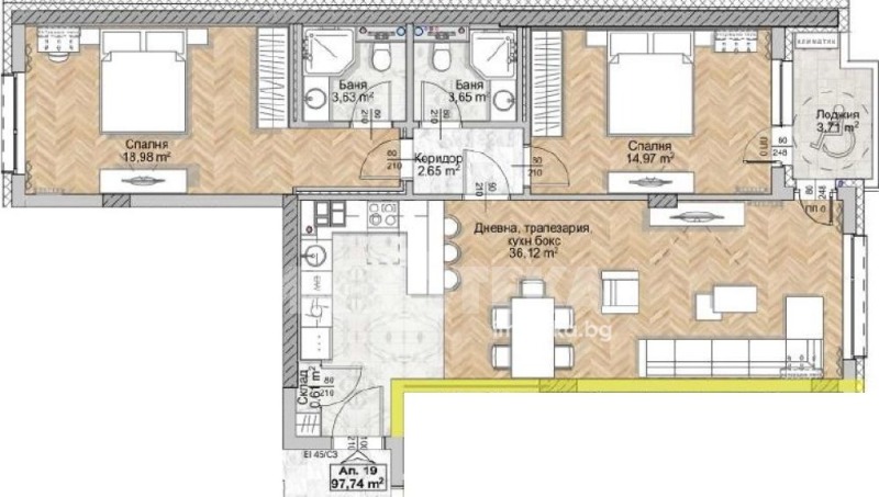
Функционален тристаен апартамент в жк ' ЛЮЛИН 8' !
Върху площ от 113 кв. м са разположени хол с трапезария и кухненски бокс (36 кв. м), две спални съответно 15 и 19 кв. м, две бани и югоизточна лоджия.
Изложения - ЮИ и СЗ.
Етаж 3 от 9.
Паркомясто 18500 евро.
' Люлин-8' или ' Люлин - център' е предпочитан за живеене и инвестиция район!
Отлична и изградена инфраструктура:
-МЕТРОСТАНЦИЯ ' Сливница'
-спирки на градски транспорт
-училища и детски градини
-множество магазини.
Модерна новострояща се сграда в жк' ЛЮЛИН 8' .
Правилни форми и просторни помещения съответстващи на изисканите общи части!
Модерна сграда със съответстваща цена.
Метростанция.
Функционални разпределения.
Обади се сега и цитирай този код 675409
Особености
Асансьор • Тухла
Страница на обявата
Брокер
Офис 'пл. Света Неделя'Личен телефон: 0882 121 488


