Продава 3-СТАЕН, град Стара Загора, Железник - център ID 41829645
123 080 €240 723.56 лв.Цената е с включено ДДС
Брокер
МоникаЛичен телефон: 0884607799
Посетена 460 пътиПубликувана в 14:37 на 06 Януари 2026
Обща информация
Квадратура123 m2
Етаж4-ти
Допълнителна информация
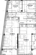
PS Property предлага БЕЗ КОМИСИОНА тристаен апартамент в новострояща се сграда, намираща се на комуникативно място в близост до хранителни магазини, спирки на градския транспорт, училища и други.
Локация: кв. Железник- запад
Характеристики: Представяме на вашето внимание сграда от утвърден строител. Има разнообразие от тристайни апартаменти и гаражи.
Обща площ: 123. 08 кв. м.
Агенция PS Property предлага БЕЗПЛАТНА консултация и съдействие при ипотечен или потребителски кредит, като услугата не е обвързана с покупка на имот
Особености
Асансьор • Контрол на достъпа • Саниран • Тухла
Страница на обявата
Брокер
МоникаЛичен телефон: 0884607799


