Брокер
Кантора Южна дъгаЛичен телефон: 0882 121 488
Посетена 3 пътиПубликувана в 12:20 на 27 Ноември 2025
Обща информация
Квадратура94 m2
ГАЗНЕ
ТEЦНЕ
Допълнителна информация
Тристаен апартамент на първи етаж от четири в малка сграда в кв. Княжево, граничеща с природен парк Витоша с бърз достъп до бул. Цар Бориси директен транспорт до НБУ.
Изложение С/З
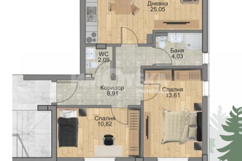
Състои се от коридор, дневна с кухненски кът, две спални, два санитарни възела и тераса.
Сградата е построена с висок клас материали, притежава ограден и озеленен двор.
Възможност за покупка на паркомясто.
Пред акт 15 до края на годината акт 16.
169 000 без ДДС/94кв. м. на 81кв. м.
Обади се сега и цитирай този код 661972
Особености
Асансьор • Тухла
Страница на обявата
Брокер
Кантора Южна дъгаЛичен телефон: 0882 121 488





