Брокер
НИКОЛАЛичен телефон: 0887730473
Посетена 2 пътиПубликувана в 09:53 на 02 Април 2026
Обща информация
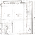
Квадратура55 m2
ГАЗДА
ТEЦНЕ
Допълнителна информация
Продаваме еднопространствено помещение на ш. з. със санитарен възел на приземен етаж в новопостроена тухлена сграда пред Акт 16 на тихо и зелено място в близост до парк Камбаните и Геритидж парк. Метростанция Бизнес парк е на около 15 мин. пеша. Помещението е със самостоятелен вход и статут на склад, но може да бъде преустроено по различни начини в зависимост от нуждите на купувача - като жилище, офис, салон за красота и т. н. Към помещението има собствен двор около 20 кв. м. За повече информация и огледи с ключ - 0887730473
Особености
Тухла
Страница на обявата
Брокер
НИКОЛАЛичен телефон: 0887730473







