Брокер
Обща информация
Допълнителна информация
Утвърден инвеститор с безупречна репутация! Разсрочени схеми на плащане! Гарантирана цена до Акт 16! Нисък процент общи части!
Предлагаме Ви за продажба апартамент в нова бутикова сграда само на три жилищни етажа, изпълнявана по Европейски стандарт и качество, с модерна визия и стил.
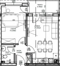
Разпределението на апартамента е както следва: просторна дневна с кухненски бокс( 20. 20кв. м), спалня(13. 20кв. м), баня с тоалетна(3. 30кв. м), антре(2. 90кв. м), тераса(5. 40кв. м) и склад(0. 6кв. м. ). Застроена площ 52. 40 кв. м. Общи части - 7, 48 кв. м. Обща площ- 59. 88кв. м.
Към жилището имате възможност да закупите и паркомясто или гараж, които се заплащат допълнително.
Без такси за управление и поддръжка!
Нашите клиенти получават преференциални условия при отпускане на потребителски и ипотечни кредити от всички банки в страната.
Адресът на офиса ни в Пловдив е бул. Източен 47, етаж 2, офис 7
Оферта GВ 16. 07. 25


