Брокер
Обща информация
Допълнителна информация
Имоти Премиер предлага на вашето внимание 🏡 тристаен апартамент в новострояща се сграда централна част на Варна, в близост до ЖП гара.
Представяме ви просторен и функционален тристаен апартамент, разположен в модерна сграда в процес на изграждане. Жилището е проектирано с внимание към детайла, осигурявайки комфорт и отлично разпределение на помещенията.
✨ Характеристики на имота:
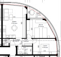
Тип: тристаен апартамент
Всекидневна с кухненска зона: 27. 06 кв. м
Спалня 1: 16. 62 кв. м
Спалня 2: 13. 56 кв. м
Лоджия: 5. 40кв. м
Килер: 1. 57 кв. м
Баня с тоалетна: 4. 14 кв. м
Антре: 5. 98
Състояние: по БДС шпакловка, замазка, изградени ВиК и ел. инсталации до тапа
🏗 За сградата:
Съвременна архитектура и висококачествено строителство
Луксозно изпълнени общи части
Енергийно ефективни материали
Контролиран достъп и асансьор
📍 Локация:
Имотът се намира в централната част на Варна, в непосредствена близост до ЖП гара, автобусни спирки, магазини, училища и административни услуги. Районът предлага отлична комуникация с всички точки на града и е подходящ както за живеене, така и за отдаване под наем.
Към имота има и възможност за закупуване на парко място.
Имот 374200

