Продава 2-СТАЕН, град София, Малинова долина ID 42725769
Брокер
Обща информация
Допълнителна информация
За повече информация обадете ни се на тел: 0882 817 487 или 02 425 68 49 и цитирайте референтния номер на имота: Sfa 89328.
Отговорен брокер: Кирил Календерски
Без комисионна от купувача!
Двустаен апартамент, разположен в един от най-динамично развиващите се райони на София кв. Малинова долина, на изключително комуникативна локация в непосредствена близост до Арката на Националната спортна академия. Местоположението осигурява бърз и удобен достъп до Студентски град, бул. Климент Охридски, Симеоновско шосе и Околовръстния път, което прави имота отличен избор както за лично ползване, така и за инвестиция с висок и устойчив наемен потенциал. Допълнително удобство е големият хранителен магазин, разположен в сградата срещу имота, който улеснява ежедневието на бъдещите обитатели.
Апартаментът се намира в модерна бутикова сграда с едва 22 жилища предимство, което e предпоставка за спокойна жилищна среда, малък брой съседи и усещане за уединение. Общите части са изпълнени с висококачествени материали, декоративна мазилка и изчистен съвременен дизайн, създаващи стилна и представителна атмосфера още от входа на сградата.
Строителството е в заключителен етап, като въвеждането в експлоатация (Акт 16) се очаква в рамките на следващите месеци.
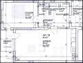
Жилището е разположено на пети, последен етаж и е със западно изложение, което осигурява приятна следобедна светлина и комфортна атмосфера през по-топлата част на деня. Общата площ на апартамента е 73. 20 м2 (чиста площ 64. 8 м2 плюс общи части 8. 40 м2) общи части. Разпределението е функционално и добре балансирано входно антре, просторна дневна с кухненски бокс, самостоятелна спалня, балкон, баня с тоалетна и отделно мокро помещение.
Апартаментът се предлага по БДС (на шпакловка и замазка), което предоставя отлична възможност новият собственик да го завърши и обзаведе изцяло по свой вкус и индивидуални предпочитания. Отоплението е предвидено на газ и климатици, осигуряващи ефективност, икономичност и гъвкавост през всички сезони.
Имотът съчетава стратегическа локация, модерно строителство и практично разпределение отличен избор както за първи дом, така и за сигурна инвестиция в район с постоянно нарастващо търсене и развитие.
Оглед на имота
Можем да организираме оглед на имота спрямо нашия график и възможностите за достъп до него. Заявете вашето желание за оглед, като се свържете с отговорния за офертата брокер по имейл или телефон.
Резервация на имота
Имотът може да бъде резервиран и . ..












