Брокер
Офис 'пл. Света Неделя'Личен телефон: 0882 121 488
Посетена 120 пътиПубликувана в 09:56 на 19 Ноември 2025
Обща информация
Квадратура96 m2
Етаж2-ри
ГАЗНЕ
ТEЦДА
Допълнителна информация
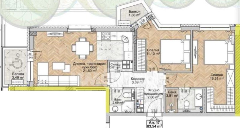
Функционален тристаен апартамент в жк ' ЛЮЛИН 8' !
Върху площ от 96 кв. м са разположени хол с трапезария и кухненски бокс (22 кв. м), две спални съответно 17 и 11 кв. м, две бани и две тераси.
Изложения - СЗ.
Етаж 2 от 9.
Паркомясто 18500 евро.
' Люлин-8' или ' Люлин - център' е предпочитан за живеене и инвестиция район!
Отлична и изградена инфраструктура:
- МЕТРОСТАНЦИЯ ' Сливница'
- спирки на градски транспорт
- училища и детски градини
- множество магазини.
Модерна новострояща се сграда в жк ' ЛЮЛИН 8' .
Правилни форми и просторни помещения съответстващи на изисканите общи части!
Модерна сграда със съответстваща цена.
Метростанция.
Функционални разпределения.
Обади се сега и цитирай този код 675744
Особености
Асансьор • Тухла
Страница на обявата
Брокер
Офис 'пл. Света Неделя'Личен телефон: 0882 121 488


