Продава 3-СТАЕН, град Пловдив, Остромила ID 43223356

109 900 €214 945.72 лв.Цената е с включено ДДС

Агенция

ДАЙМЪНД ХОУМ БЪЛГАРИЯ ЕООД, град Пловдив
ДАЙМЪНД ХОУМ БЪЛГАРИЯ ЕООДград Пловдив бул.Марица 91
Посетена 12 пътиПубликувана в 10:16 на 23 Септември 2025

Обща информация

Квадратура118 m2
Етаж4-ти

Допълнителна информация

🙏 С всяка сделка ние от Diamond Home помагаме! 💎
Даряваме процент от нашата комисионна на Фондация Вярвай - организация, която подпомага хора, борещи се с рак.
Вярваме, че заедно можем да направим нещо повече от просто бизнес - можем да дадем надежда. ❤ ️

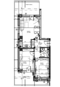
💎 Представяме Ви мансарден тристаен апартамент в малка бутикова сграда на 4 етажа, разположена в сърцето на квартал Остромила.

Обща квадратура - 118, 63 кв. м

📐 Разпределение: вх. антре, дневна с кухн. част, 2 спални, баня с wc, склад, покрив тераса.

📍 Локация: тихо място с модерна инфраструктура, в близост до супермаркет, аптека, болница, кафенета и ресторанти, както и спирки на градски транспорт.

✔ Качествено строителство от доказан и успешен инвеститор.
Комплексът се състои от 3 самостоятелни жилищни сгради, всяка с партер и 3 жилищни етажа с асансьор. Предлага различни по-големина двустайни и тристайни жилища, по 9 апартамента на етаж. Пространството около сградите е решено с паркоместа и озеленяване.

💎 Мисията ни е да създадем доверие във Вас, като Ви предоставяме най-високо качество на обслужване!

💎 Разполагаме с над 1000 имота!

💎 Услугите, които предлагаме:

- Консултация от старши брокер
- Съдействие с кредитен консултант относно финансирането Ви
- Договаряне на възможно най-изгодни условия за Вас
- Оформление на цялата документация по сделката
- Агенцията работи с утвърден юрист в бранша
- Управление на всякакъв вид имоти

💎 За информация или оглед относно този или друг имот не се колебайте и се свържете с нас!

ОФЕРТА НОМЕР: 240317

Особености

Асансьор • Тухла

Страница на обявата

Агенция

ДАЙМЪНД ХОУМ БЪЛГАРИЯ ЕООД, град Пловдив
ДАЙМЪНД ХОУМ БЪЛГАРИЯ ЕООДград Пловдив бул.Марица 91

Споделяне

Преглeд на обявите по населени места: