Продава 1-СТАЕН, град Пловдив, Христо Смирненски ID 43380423
Брокер
Обща информация
Допълнителна информация
БИЛДИНГ БОКС има удоволствието да Ви представи едностаен луксозно обзаведен апартамент в гр. Пловдив.
Предимства на имота:
- ЛОКАЦИЯ: Сградата се намира в един от най-предпочитаните квартали - ' Христо Смирненски' , в близост до магазини, маркети, болници.
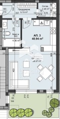
- РАЗПРЕДЕЛЕНИЕ: Дневна и трапезария с кухненски бокс, с площ от 28, 27 кв. м, баня и WC - 4, 86 кв. м, преддверие с площ от 5, 15 кв. м и склад - 2, 49 кв. м.
- ПЛОЩ: Жилището е с обща площ от 65, 06 кв. м.
- ЕТАЖ: 1-ви етаж от общо 7.
- ОТОПЛЕНИЕ: Електричество.
- ИЗЛОЖЕНИЕ: ЮГ.
- СТРОИТЕЛСТВО: Тухла. Сградата е въведена в експлоатация през 2023г.
- ПРЕДИМСТВА: Висок клас строителство и обзавеждане по индивидуален проект. Апартаментът е изключително светъл, просторен и уютен.
БИЛДИНГ БОКС предоставя безплатна консултация и съдействие при финансиране на избрания от Вас имот.
Оферта 18468








