Продава 2-СТАЕН, град Пловдив, Тракия ID 43728051

71 610 €140 056.99 лв.Цената е с включено ДДС

Агенция

ГОЛД ИМОТИ, град Пловдив
ГОЛД ИМОТИград Пловдив улица '' Брезовска '' 31а

Брокер

ТаняЛичен телефон: 0894274966
Посетена 19 пътиПубликувана в 09:35 на 09 Октомври 2025

Обща информация

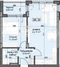
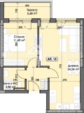
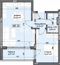
Квадратура66 m2
Етаж5-ти

Допълнителна информация

✅ БЕЗ КОМИСИОН! ✅ ЦЕНИ ДИРЕКТНО ОТ ИНВЕСТИТОР! ✅ ОФЕРТА:10968
🏡 Агенция за недвижими имоти, 'ГОЛД ИМОТИ', има удоволствието да Ви представи 1-стайни, 2-стайни и 3-стайни апартаменти в новостроящ се комплекс, в кв. Тракия!
✅ Двустайните жилища се състоят от: входно антре, дневна с кухненски бокс, спалня, баня с тоалетна, тераса и/или веранда.
Налични са следните модули:
-65, 70 кв. м. - 71 610 евро;
-69, 62 кв. м. - 73 101 евро;
-71. 12 кв. м. - 74 676 евро;
-67. 82 кв. м. - 78 671 евро;
-69. 25 кв. м. - 80 330 евро;
-72. 38 кв. м. - 83 960 евро;
🔥 Възможност за 8% отстъпка при изплащане на жилището до септември 2025г! 🔥
✅ Освен с модерната си визия, комплексът ще се отличава с още предимства:
⏩ Жилища на партерно ниво, които разполагат с малки дворчета - тип веранди!
⏩ Панорамни тераси и френски прозорци!
⏩ Красива гледка и изобилие от естествена светлина!
⏩ Висококачествени строителни материали, положени от високо компетентен екип!
🚘 Безпроблемно паркиране: Възможност за закупуване на гаражи и подземни паркоместа!
🎯 Отлична локация: В близост до р-т 'Мавруда', Mall Plaza, хотел 'SPS', МЕТРО, училища, автобусни спирки, хранителни магазини и други удобни за Вас места!
➡ ️ Пусков срок - края на 2028г.
➡ ️ 'ГОЛД ИМОТИ' Ви предлага да се възползвате от професионално кредитно посредничество чрез Credit Center при ипотека, потребителски кредит и рефинансиране!
-УСЛУГАТА Е ИЗЦЯЛО БЕЗПЛАТНА!
-ИЗГОТВЯНЕ НА НЯКОЛКО ОФЕРТИ ОТ ВОДЕЩИ БАНКИ!
-НАЙ-ИЗГОДНИ УСЛОВИЯ СПРЯМО ВАШИЯТ ПРОФИЛ!
-НЕ Е НЕОБХОДИМО ДА СЕ РАЗКАРВАТЕ ВЪВ ВСЕКИ КЛОН НА РАЗЛИЧНИ БАНКИ!
📲 За повече информация и при интерес за оглед, моля свържете се с нас на: 0894 274 966, 0899 143 262 и 0899 125 189!

Особености

Асансьор • С гараж • С паркинг • Интернет връзка • Контрол на достъпа • Тухла

Страница на обявата

Агенция

ГОЛД ИМОТИ, град Пловдив
ГОЛД ИМОТИград Пловдив улица '' Брезовска '' 31а

Брокер

ТаняЛичен телефон: 0894274966

Споделяне

Преглeд на обявите по населени места: