Продава 2-СТАЕН, област Пловдив, гр. Хисаря ID 44092571
Обща информация
Допълнителна информация
!!!Жилища на Акт 14 в гр. Хисаря!!! Без комисионна!!! Тиха и панорамна локация!!!
Висок клас материали! Висока енергийна ефективност, топло и шумоизолации! Спиращи дъха гледки!
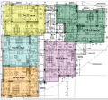
Бутик за имоти Реджина предлага за продажба двустаен апартамент с площ 64. 70кв. м. , който има оптимално разпределение и е изключително подходящ за ваканционно жилище. Намира се в гр. Хисаря, в близост до парк Момина баня. Имотът се отличава с красива панорамна гледка към Средна гора и усещане за простор, а помещенията могат да се похвалят с много светлина и уют. Жилището се намира на четвърти етаж и има следното разпределение: входно антре, кухненски бокс с трапезария и хол, спалня, складово помещение, санитарен възел и балкон. Изложение-запад. Апартаментът ще бъде завършен на степен: стени - гипсова мазилка, подови настилки - замазка, санитарен възел с подготовка за фаянс, немска дограма, входна блиндирана врата, ВИК до тапа, ел. инсталация с ключове и контакти. В складовото помещение, което е разположено в самия апартамент, може да бъде изградена втора тоалетна или перално помещение. Прекрасно предложение с качество на строителството много над предлаганото в района!
!!! Има възможност за извършване на всички довършителни работи от инвеститора, което е въпрос на допълнителна уговорка!!!
Срок за въвеждане в експлоатация - декември 2026г.
Сграда Реджина 'ВИСТА / гледка - от итал. / е разположена в полите на Средна гора и името и е вдъхновено от невероятната панорама, с която е заобиколена.
Това е райско кътче, потопено в зеленина и тишина, недокоснато от шума и пренаселеността на големия град.
Намира се в централен жилищен район на гр. Хисаря, в непосредствена близост до нов и модерен стадион. Мястото е изключително тихо, а същевременно комуникативно.
В близост има магазини, училище, детска градина, лекарски кабинет, хотел и др.
За любителите на разходките сред природата има прекрасни условия за планинарство и риболов. На разстояние по-малко от 500 м. се намира малък и обновен язовир.
Сградата е с РЗП 1800 кв. м. и разполага с 22 двустайни и тристайни апартаменти с площ от 52 до 233 кв. м. Разполагаме и с паркоместа, ситуирани пред нея.
Новата ни сграда Реджина Виста ще бъде построена с висок клас материали и технологии, отговарящи на най-модерните и съвременни изисквания, ще се отличава със своята:
- дограма от най-висок клас с енергоспестяващи стъклопакети от нискоемисионни стъкла, отговаряща на изискванията за изключителна енергийна ефективност и с 5 годишна пълна гаранция;
- 12 см фасадна топлоизолационна система с 15 годишна гаранция ;
- шумоизолация на подове и стени между съседни апартаменти, осигуряваща висококачествена звукова защита;
- бърз електрически асансьор;
- луксозно завършени общи части и smart осветление;
- италиански блиндирани входни врати;
- дворни площи с ограда, озеленяване и автоматизирана напоителна система;
- кът за отдих и малка детска площадка;
- модерно видеонаблюдение;
- новоизградена асфалтова улица с тротоари, широколистни дървета и удобен достъп;
Има възможност за закупуване на паркомясто пред сградата.
Оказваме пълно съдействие при банково кредитиране!
Първокласно строителство от фирма с дългогодишен опит и множество изградени сгради в района с безкомпромисно качество!
Съграденото остава след нас!












