Брокер
Обща информация
Допълнителна информация
АРТЕМИС ЕСТЕЙТ ви представя нова жилищна сграда в строеж в кв. Овча купел.
Представяме ви тристаен апартамент в модерна жилищна сграда в строеж, разположена на тихо и удобно място в един от най-бързоразвиващите се райони на София - кв. Овча купел. Само на няколко минути пешеходно разстояние от метростанция Овча купел , големи хранителни магазини, училища, детски градини и лечебни заведения.
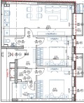
Имотът разполага с площ от 99 кв. м, включващи входно антре, всекидневна с кухненски бокс, две спални помещения, баня с тоалетна, отделна тоалетна, две тераси и складово помещение. Намира се на четвърти етаж.
Характеристики на проекта:
- Съвременна архитектура и висококачествено строителство.
- Енергийно ефективна фасада и висок клас материали.
- Контролиран достъп и модерни общи части.
- Подземни и надземни паркоместа.
Свободни апартаменти:
- Двустайни и тристайни жилища с функционални разпределения и светли помещения.
- Възможност за избор на етаж, квадратура и гледка.
- Гъвкави схеми на плащане по време на строителството.
Предимства на локацията:
- Близост до метростанция, автобусни линии и основни булеварди.
- Спокоен район с много зелени площи.
- В непосредствена близост до Нов български университет.
- Перфектно място както за живеене, така и за инвестиция с отлична възвръщаемост.
Ако проявявате интерес към имота се свържете с нас на телефона посочен в обявата, като ще ви бъде необходим референтен номер на имота: 41755.
За нашите клиенти сме подготвили:
* богато портфолио от различни имоти в различни райони;
* консултация със специалист недвижими имоти;
* консултация с юрист свързана с подготовка на всички необходими документи;
* консултация с кредитен консултант;
* различни оферти за ипотечен или потребителски кредит;


