Продава 3-СТАЕН, град Варна, Бриз ID 44473475

224 000 €438 105.92 лв.Цената е с включено ДДС

Агенция

КУПИ В БЪЛГАРИЯ, град Варна
КУПИ В БЪЛГАРИЯград Варна ул. Акад. Андрей Сахаров 19

Брокер

ДианаЛичен телефон: 0897 630 830
Посетена 65 пътиПубликувана в 17:29 на 03 Октомври 2025

Обща информация

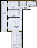
Квадратура112 m2
Етаж3-ти

Допълнителна информация

Компания за недвижими имоти ' Купи в България' има изключителното удоволствие да представи на клиентите си нов проект на модерна бутикова жилища сграда, в една от най-желаните локации на град Варна, а именно ж. к. Бриз.

Мечтаете ли за удобство, красива морска гледка, тишина, спокойствие и в същото време да живеете в града? Възможно е!

Разположена във високата част на един от най-престижните квартали за живеене и инвестиции във Варна кв. Бриз, сградата е комбинация от модерна архитектура и луксозно изпълнение, в непосредствен допир с природата. Именно това съчетание гарантира на Вас и Вашите деца, спокойствие и удобство, от което всички имаме нужда в забързаното ежедневие! Замислена и проектирана, като затворен мини комплекс , с голямо дворно място и прекрасно озеленени части, в сградата са предвидени контролиран достъп и достатъчно паркоместа.

В сградата са предвидени 21 апартамента с площ от 72 до 156 м?, като за всеки от тях има предвидено мазе.

Сградата е на пешеходно разстояние от стадион Юрий Гагарин и на 500 метра от автобусна спирка на бул. Васил Левски . В близост има голям хипермаркет, плувен басейн, фитнес зала, медицински център, детски градини и училища.

Правилните форми, функционалните разпределения и внимание към всеки детайл са в основата на проекта.

- Блиндирани входни врати
- 8-местен електрически асансьор
- Входната и гаражната врати на H?rmann
- Дограмата е в сив цвят с профили GEALAN - шест-камерна, енерджи стъкла
- До всяка стая на апартаментите ще бъдат прекарани трасета за климатици
- Ограда от ковано желязо, по цялата периферия на имота
- Тераси със стъклени парапети
- Периметрово видеонаблюдене
- Видеонаблюдение на подземния паркинг
- Апартаментите имат вградена система за охрана

На разположение на бъдещите собственици, в двора ще бъдат изградени кът за отдих с барбекю зона и детска площадка.

Гъвкавите схеми на разплащане и не подлежащата на промяна цена след подписване на предварителен договор, са допълнителни предимства, за да изберете бъдещия си дом именно в тази бутикова сграда!

За повече информация и оглед на имота, не се колебайте да се свържете с нас на посочените телефони!

С удоволствие Ви информираме, че в случай че разглеждате възможността за банков кредит, ние разполагаме с екип от лицензирани кредитни консултанти, които са готови да Ви предоставят безплатна консултация. Те ще Ви помогнат да разберете вашите опции за финансиране и да изберете най-подходящото решение според Вашите нужди и възможности.

ID 30787

Особености

Асансьор • Охрана • С паркинг • Тухла

Страница на обявата

Агенция

КУПИ В БЪЛГАРИЯ, град Варна
КУПИ В БЪЛГАРИЯград Варна ул. Акад. Андрей Сахаров 19

Брокер

ДианаЛичен телефон: 0897 630 830

Споделяне

Преглeд на обявите по населени места: