Брокер
Обща информация
Допълнителна информация
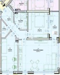
HOLDING GROUP real estate представя на Вашето внимание тристаен апартамент в кокетна сграда с предстоящ строеж в м-ст Кабакум. Жилището е ситуирано на ет. 5 от 6 етажна жилищна сграда с асансьор. Състои се от антре, дневен тракт, две спални, килер, лоджия и баня с тоалетна. Жилището се намира в близост до най-красивата брегова линия във Варна. Плажът е само на 500 метра, а Свободният университет е на 200 метра Завършването на имота ще е по БДС. Възможност за довършване до ключ. Изключително качествено строителство, за което се използват само висококачествени материала. Възможност за закупуване на открито или закрито паркомясто. В сградата се предлагат и студия и двустайни апартаменти. За повече информация, моля да се обадите на посоченият телефонен номер и да цитирате кода на офертата.
Код на офертата 6465







