Продава 3-СТАЕН, град Пловдив, Христо Смирненски ID 45075947
Обща информация
Допълнителна информация
✔ Жилищен комплекс с просторен озеленен вътрешен двор ✔ Доказан строител! ✔ Гарантирана цена до Акт 16! ✔ Разсрочени схеми на плащане!
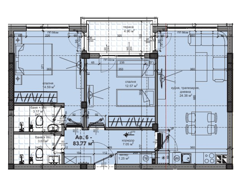
➡ Имотът се състои от антре, 2 бани с тоалетна, килер, 2 спални, дневна с кухня и трапезария, тераса и е с обща площ от 102, 6 кв. м.
✔ Локация:
кв. Христо Смирненски, в близост до Гребна база, както и до ул. Рая
✔ Строителство:
Фасадa - окачена вентилируема, изпълнена с керамични плочи LAMINAM, естествен камък и стъклени парапети. Проектът залага на иновативни технологии и материали от ново поколение, както по фасадата, така и в общите части.
Oзеленен двор между секциите, като сградите са изтеглени максимално към границите на имота с цел повече пространство, светлина и комфорт
Паркинг: подземни и надземни паркоместа и гаражи
Имоти в продажба: двустайни, тристайни и четиристайни
Старт на строителство: 2026г.
Срок на завършване: 36 месеца от старта
➡ Alpha Real Estate, специализиран посредник на водещите строителни фирми. За още предложения ново строителство в гр. Пловдив посетете нашия сайт: https://alphaestate.bg
Реф. 2390

