Посетена 235 пътиПубликувана в 08:08 на 02 Април 2026
Обща информация
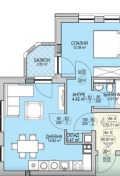
Квадратура61 m2
Етаж1-ви
Допълнителна информация
ДВУСТАЙНО ЖИЛИЩЕ В БЛИЗОСТ ДО МОЛ ПАРАДАЙЗ , ИЗКЛЮЧИТЕЛНО КАЧЕСТВЕНО СТРОИТЛСТВО, С АКТ 14 И УДОСТОВЕРЕНИЕ ПО ЧЛ. 181 ОТ ЗУТ. АКТ 15 ДО МЕСЕЦ . ДНЕВНА, СПАЛНЯ, БАНЯ С ТОАЛЕТНА И БАЛКОН. ОСИГУРЕНО БАНКОВО КРЕДИТИРАНЕ ЗА ИМОТА . ТЕЛ. ЗА ОГЛЕДИ 087989885 , 0876068879 , 0876068899
Особености
Асансьор • Контрол на достъпа • Тухла




