Продава 4-СТАЕН, град Варна, Възраждане 1 ID 45892304

255 000 €498 736.65 лв.Цената е с включено ДДС

Агенция

HOME2U , град Варна
HOME2U град Варна бул. Владислав Варненчик 81, ет. 8
Посетена 46 пътиПубликувана в 15:34 на 29 Септември 2025

Обща информация

Квадратура155 m2
Етаж2-ри

Допълнителна информация

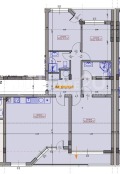
! НОВА ЦЕНА ! ГОЛЕМИ ПЛОЩИ ! ДО ПАРК ВЪЗРАЖДАНЕ ! СРЕДЕН И ПОКРИТ ! ВИСОК КЛАС СТРОИТЕЛСТВО ! ДОКАЗАН ИНВЕСТИТОР С ДЪЛГОГОДИШЕН ОПИТ ! Предлагаме за продажба четиристаен апартамент в кв. Възраждане. Сградата е с изчистена архитектура и модерен дизайн намира се на на една крачка от парк възраждане, големи супермаркети, училище, детска градина и здравни медицински заведения. Има издаден акт14. Разпределението е както следва: входно антре, голяма и слънчева всекидневна с излаз на тераса, родителска спалня с дрешник и самостоятелен санитарен възел, килер, две спални с излаз на обща тераса, баня и тоалетна и две тераси. За улеснение и повече яснота прилагаме схема на разпределение. Обадете се СЕГА и цитирайте код: 130439

Особености

Тухла

Страница на обявата

Агенция

HOME2U , град Варна
HOME2U град Варна бул. Владислав Варненчик 81, ет. 8

Споделяне

Преглeд на обявите по населени места: