Брокер
Обща информация
Допълнителна информация
✨ Предлагаме Ви двустаен апартамент ново строителство с Акт 16 в кв. Тракия модерен и динамично развиващ се квартал с отлично изградена инфраструктура, зелени площи, училища, детски градини, търговски центрове и удобен транспорт.
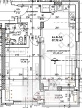
Жилището е с обща площ 68, 06 кв. м (чиста площ 57, 72 кв. м) и е разположено на 7-ми етаж от 9.
С южно изложение, апартаментът е светъл и топъл, което го прави изключително комфортен за живеене.
📐 Разпределение:
дневна с кухненски бокс,
спалня,
баня с тоалетна,
коридор,
тераси.
Сградата е с Акт 16, има поддържан вход и предлага възможност за закупуване на паркомясто. Жилището е с поставени интериорни врати, което улеснява бъдещото му завършване и обзавеждане.
🔹 Предимства:
южно изложение светъл и топъл апартамент,
ново строителство с Акт 16,
възможност за закупуване на паркомясто,
отлична локация в сърцето на Тракия.
💡 Подходящ избор за личен дом или инвестиция с цел отдаване под наем.
👉 Предлагаме пълно съдействие при банково кредитиране на преференциални условия.
📞 Свържете се с нас за повече информация и оглед!
Оферта 6697










