Брокер
Обща информация
Допълнителна информация
Референтен номер: 2326.
БЕЗ КОМИСИОННА ОТ КУПУВАЧА
ПРОМОЦИОНАЛНА ЦЕНА ДО КРАЯ НА ГОДИНАТА
ДВУСТАЕН ПАРТЕРЕН АПАРТАМЕНТ КВ. БЕЛОМОРСКИ
НОВОИЗГРАЖДАЩА СЕ МАЛКА СГРАДА С МАЛЪК ПРОЦЕНТ ОБЩИ ЧАСТИ
ГЪВКАВА И УДОБНА СХЕМА НА ПЛАЩАНЕ
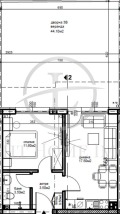
Основни характеристики:
-Площ- 50кв. м. двор 44кв. м.
-Разпределение- хол с кухненски бокс, спалня, баня с тоалетна, склад, входно антре и партерна веранда 44кв. м.
-Изложение- Запад
-Етажност- Партер от 4
-Паркиране- Възможност за покупка на паркомясто или гараж
Всички жилища ще се издават на степен на завършеност шпакловка и замазка ВиК до тапа и Ел инсталация доключ.
Утвърден във времето строител с множество завършени сгради.
За повече информация и организиране на огледи, моля, свържете се с нас на посочения номер, като ще Ви е необходим следният референтен номер: 2326
Лайт Хоум имоти е доверен партньор на най-големите банкови институции в страната и съдейства за преференциални условия при нужда от кредитиране. Ще получите юридическо съдействие през целия процес на сделката, както и съдействие при подготовка, подаване и получаване на всички необходими документи за сделката.














