Брокер
Обща информация
Допълнителна информация
ОФЕРТА 83236
Римекс имоти има удоволствието да Ви представи невероятен и иновативен проект в кв. Гагарин. Комплексът включва четири жилищни секции, подземен и надземен паркинг с паркоместа и гаражи, озеленени площи с обособен детски кът и зони за отдих, както и специално проектиран лондж, разположен на партер.
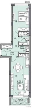
Жилището на обявата представлява ДВУСТАЕН апартамент, разположен на 8 етаж от 11, с изложение север/юг.
Комплексът е разположен в квартал Гагарин, в близост до основни пътни артерии, търговски структури, детски градини, училища и паркове.
Ще разполага с изградена система за видеонаблюдение и контрол на достъпа, с цел осигуряване на спокойствието и сигурността на собствениците.
-Напълно завършени апартаменти, с внимателно подбран интериор и перфектно изпълнение, отговарящи на изискванията на купувачите.
БЕЗ КОМИСИОННА ОТ КУПУВАЧА!
За повече информация, моля обадете се.


