Продава 2-СТАЕН, град София, Манастирски ливади ID 46617779
Брокер
Обща информация
Допълнителна информация
Ексклузивно! Два двустайни апартамента с южно изложение и паркомясто и гледка към Витоша /само единият/   в един от най-търсените райони на София. 
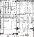
Имот с отлични параметри и сигурна инвестиционна стойност в сграда пред акт 16! Апартаментът изцяло вътрешен, на среден етаж, което го прави изключително тих и топъл. Южното изложение гарантира светлина и уют през целия ден, а функционалното разпределение осигурява използване на всеки един квадратен сантиметър!
Локацията е сред най-предпочитаните в столицата   район с високо търсене от наематели заради множеството бизнес сгради наоколо, бързия достъп до центъра и непосредствената близост до болница ' Св. София' . Това прави имота отличен избор както за лично ползване, така и за инвестиция с гарантиран висок наем и заетост. 
Към апартамента има прилежащо мазе с площ от 3, 62 м2 и се продава паркомясто   удобство, което допълва стойността и практичността на жилището. 
Обадете се сега и запазете своя час за оглед с Димиър Христов! (yavlenaCOM/161123).










