Продава 2-СТАЕН, град Варна, Цветен квартал ID 46622798
Брокер
Обща информация
Допълнителна информация
Нова Сграда / Среден Етаж / Изцяло ЮГ / Луксозно Изпълнение
За повече информация:
Консултант недвижими имоти Петър Петров - тел. : 0894 555 690 или на novdom1.bg реф. 82984
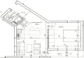
Нов Дом 1 предлага за продажба двустаен апартамент в новострояща се луксозна сграда намираща се в Цветен Квартал.
Сградата ще се изпълнява с водоплътен бетон клас С 25/30 като допълнителна гаранция за високоякостните характеристики на стоманобетонната конструкция. Този бетон е над изискванията по проект и с него се строят много високи сгради. Зидарията се изпълнява с тухли ВИНЕРБЕРГЕР . Дограмата ще е от висок клас, с най-добри показатели ! Апартаментът се намира на втори етаж с изцяло южно изложение и е със следното разпределение:
- Входно антре
- Баня с тоалетна
- Дневна с кухненски бокс
- Спалня
- Тераса
В сградата се предлагат и други апартаменти заедно с опция за подземни и надземни паркоместа. Апартаментите се издават по БДС заедно с поставени интериорни врати и дограма - ПВЦ - висок клас, седемкамерен профил, двоен стъклопакет.
* Приложените снимки са илюстративни *
Свържете се с нас за допълнителна информация и организиране на оглед !
Whatsapp / Viber / Messenger / Telegram - Всеки Ден от 8:30 до 22:30 - 0894 555 690



